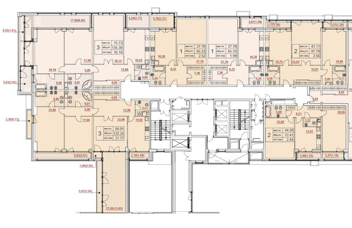
Планировки квартир в ЖК «Новоясеневский»
Планировки квартир в ЖК «Новоясеневский»
-
0
- Цитата
Сообщение LiliyaM » 10 май 2016, 17:43
Очень удобные планировки. Мы на удивление с мужем даже не спорили при выборе). Сначала было непривычно, что санузел совмещенный, так как до этого всегда жили с раздельным, но решили, что привыкнем).
Планировки квартир в ЖК «Новоясеневский»
-
0
- Цитата
Сообщение Lissssa » 29 май 2016, 21:34
К санузлу совмещенному быстро все привыкают. Но согласна, что он неудобен тем у кого очень большая семья. Если маленькая семья, то нормально.
Вернуться в «Форум жителей ЖК - «Новоясеневский»»
Перейти
- Компания Фундамент Строй
- Ремонт своими руками (Статьи)
- Купля-продажа, аренда недвижимости
- Общение обо всем
- Оглавление по районам Москвы и Подмосковья
- ЦАО - Центральный административный округ
- Жилой микрорайон "Садовые кварталы"
- ЖК "Sky House"
- ЖК "Wine House" (лофт-апартаменты)
- МФК "Ситер" (МФК "IQ Квартал")
- Апарт-квартал "Loft Post" (лофт)
- Апартаменты "Loft Factory" (лофт)
- Жилой дом "Остоженка" (Проект "Golden Mile private residence")
- ЖК "Royal House on Yauza"
- МФК "Поварская" (ЖК "Театральный дом") апартаменты
- ЖК "Сады Пекина"
- ЖК "Red Side" (ЖК "Ред Сайд")
- ЖК на Пресненском Валу, вл. 14 ПРОЕКТ
- Клубный дом "Mon Cher"
- ЖК "St. Nickolas"
- ЖК "Резиденция Монэ"
- ЖК "Фабрика Марата" ПРОЕКТ
- МФК "Balchug Viewpoint" (МФК "Балчуг Вьюпоинт")
- ЖК "Дом на Сретенке"
- МФК "Balchug Residence" (МФК "Балчуг Резиденс")
- Апарт-комплекс "Волга"
- ЖК "Дом на Люсиновской" (апартаменты)
- ЖК "На шлюзовой набережной" (Жилой Квартал "I'M")
- ЖК "Резиденция Шаболовская слобода"
- ЖК "Звонарский 3/4"
- ЖК "Дом на Рогожском Валу"
- ЖК на территории промзоны "Грузинский вал" ПРОЕКТ
- ЖК "Гороховский 12"
- ЖК "Резиденция на Всеволожском"
- Жилой дом на Большом Тишинском переулоке, д. 43/20, стр. 3 ПРОЕКТ
- ЖК "Clasico" (ЖК "Олимпийский, 10")
- Клубный дом "Chekhov"
- Клубный дом "Рахманинов"
- ЖК "Английский квартал"
- Апарт-комплекс "Волга"
- Клубный дом на Котельнической набережной (ЖК "Котельнический")
- ЖК "Рассвет Loft Studio"
- ЖК "Фабрика Марата" ПРОЕКТ
- Жилой Квартал на Пресненском Валу, вл. 14 ПРОЕКТ
- ЖК "Кленовый дом"
- МФК "Око"
- ЖК "Английский квартал"
- САО - Северный административный округ
- ЖК "Флотилия"
- Р-н Левобережный, мкр. 2В, ул. Смольная, д. 49, корп. 8А, 8Б (ЖК "Кристалл")
- МФК "Водный"
- Апарт-комплекс "Loft Park" (лофт)
- ЖК "Loft time" (лофт)
- Жилой Квартал "ВТБ "Арена Парк"
- ЖК ApartVille Fitness&Spa Resort (ЖК "Апарт Вилль")
- МФК "Искра-Парк"
- ЖК "Art Residence" (Арт Резиденс)
- Хорошевское ш., вл. 38 (Мкрн. для военнослужащих)
- Клубный дом "Юннаты"
- ЖК "Карамель"
- Лофт-квартал "AEROLOFTS"
- ЖК "Белый парк-2"
- ЖК "Невский"
- ЖК "Дыхание"
- Апарт-комплекс "Клевер Лэнд"
- ЖК "Город"
- ЖК "Парк Плаза" (ЖК "Park Plaza")
- ЖК "Кронштадтский"
- Жилой район Ховрино, ул. Левобережная, д. 4а
- СВАО - Северо-Восточный административный округ
- ЖК "Триколор"
- Клубный дом "Скай Паркс" (ЖК "Sky Parks")
- ЖК "Парк Мира"
- МФК "Савеловский Сити"
- ЖК "Староалексеевская"
- ЖК "1147"
- МФК на "Алексеевской" ПРОЕКТ
- ЖК "Egodom"
- ЖК "Life-Ботанический сад"
- Мини-город "Sky City" ("High City")
- ЖК "Дом на Изумрудной"
- Жилой дом на улице Коминтерна
- ЖК в мкр. Северный
- Клубный дом на Менжинского
- Клубный дом на Пришвина (МФК на Пришвина)
- Дом на ВДНХ (МФК на Галушкина)
- ЖК "Двинцев, вл. 14" (ЖК "Двинцев")
- Жилой дом в мкр. 1-2-3, корп. 9 ПРОЕКТ
- ЖК "Парк Плаза" (ЖК "Park Plaza")
- Жилой Квартал "1147"
- Жилой дом в мкр. 1-2-3, корп. 9 ПРОЕКТ
- Жилой Квартал "Березовая аллея"
- ВАО - Восточный административный округ
- Жилой Квартал "Наследие" на Преображенской (ЖК "Преображенский")
- ЖК "Ренессанс"
- ЖК "Соколиный форт"
- Жилой дом "Измайлово Lane"
- Апарт-комплекс "Re:form"
- ЖК "Золотая Звезда" ПРОЕКТ
- ЖК "Константа"
- ЖК "Яуза Парк"
- ул. Мельникова, вл. 1-3, корп. 1-7
- ЖК "Консент"
- ЖК на ул. Лосиноостровская, вл. 45
- ЖК на ул. Бирюсинка, вл. 4
- МФК на ул. Тагильская, вл. 4, стр. 5, 13
- ЖК на шоссе Энтузиастов, вл. 88
- ЖК "Штат 18"
- ЖК в Измайлово
- ЖК "Дом на ул. Краснобогатырская, д. 38" (ЖК "Богородский квартал")
- ЖК «Лосиный остров»
- ЖК "Большое Кусково"
- ЮВАО - Юго-Восточный административный округ
- Мкр. "Некрасовка-Парк" квартал 4, 5, 7
- ЖК "Некрасовка" (ЖК "Некрасовка-Парк) квартал 10, 11
- ЖК "Символ"
- Жилой дом на Душинской улице
- ЖК "SREDA" (ЖК в промзоне Грайвороново, Рязанский проспект, вл. 2)
- ЖК "Лефорт"
- ЖК "126 квартал"
- Жилой дом на ул. Артюхиной, вл. 28А ПРОЕКТ
- ЖК "40 лет Октября" ПРОЕКТ
- Чертаново, дублер Варшавского ш., корп. 2АБВ
- ул. Мельникова, вл. 1-3, корп. 1-7
- ЖК "Петр I"
- МФК "Город на Рязанке"
- ЖК "Кварталы 21/19" (ЖК на месте завода "Молния")
- ЮАО - Южный административный округ
- ЖК "Царицыно"
- Нагатино-Садовники, мкр. 1, вл. 29А, 29Б, 30А
- мкр. "Царицыно-2"
- ЖК "Донской олимп
- ЖК "Варшавское шоссе 141" (ЖК "Варшавские холмы", ЖК "Варшавские огни")
- ЖК "Barkli Residence" (ЖК "Баркли Резиденс")
- ЖК "River Park" (ЖК "Ривер Парк", ЖК "Речник", ЖК "Нагатинский затон")
- Апарт-комплекс "Старт-формат" (мкр. Царицыно-2)
- Чертаново - Северное, мкр. 7Б
- ЖК "Парк Легенд" (ЖК на территории завода "ЗИЛ", Завод им. И. А. Лихачёва)
- ЖК "Дом на Самаринской"
- ЖК "Дом на Нагатинской"
- Дом на Серпуховском валу
- ЖК "V-House"
- ЖК на Симоновской набережной ПРОЕКТ
- ЖК "Технопарк"
- ЖК на ул. Маршала Захарова, вл. 7
- ЖК "ЗИЛАРТ"
- ЖК "Дом на Самаринской"
- ЖК "Донской" ПРОЕКТ
- Комплекс апартаментов "ТехноПарк"
- ЖК "Донской" ПРОЕКТ
- Комплекс апартаментов "ТехноПарк"
- Чертаново - Северное, мкр. 7Б
- ЮЗАО - Юго-Западный административный округ
- ЖК на ул. Нагорная, д. 7, корп. 1
- ЖК "Versis"
- Новые Черемушки, квартал 10С, корп. 8
- ЖК "Эталон-Сити"
- ЖК "Ландыши" (Апарт-комплекс вблизи с ул. Островитянова)
- ЖК "Квартал 38А"
- ЖК на ул. Дмитрия Ульянова ПРОЕКТ
- ЖК " Потапово Lite"
- ЗАО - Западный административный округ
- ЖК "Академ Палас"
- ЖК "ФилиЧета" (ЖК "ФилиЧета"-2)
- ЖК "Долина сетунь"
- МФК "Снегири-Эко"
- ЖК "На ул. Мосфильмовская" (ЖК "Мосфильмовский")
- МФК "Фили Град"
- ЖК "О7"
- ЖК "Лобачевский"
- Штаб-квартира на Мосфильмовской
- МФК "Волынская" ПРОЕКТ
- ЖК "Раевский" (ЖК "Кутузовская Миля")
- ЖК "Крылатский"
- ЖК "The MID"
- ЖК "Loft 151"
- ЖК "Wood House"
- ЖК "Atlantic Apartments"
- ЖК "Мичурино-Запад"
- Боровское шоссе, вл. 2 "Мещерский лес"
- ЖК "Воробьев дом"
- Лофт-апартаменты "Klein House" ("Клейн Хаус")
- МФК на Мичуринском проспекте, вл. 30Б ПРОЕКТ
- ЖК "Ярцевская 24"
- Жилой дом на ул. Ельнинская, 14Б
- ЖК "Лучи" (ЖК в Солнцево) ПРОЕКТ
- ЖК на ул. Береговой проезд, вл. 2-3
- ЖК на Кутузовском проспекте, 16
- ЖК на ул. Заречная
- ЖК на ул. Главмосстроя, корп. 25-27
- ЖК на ул. Лобачевского, вл. 120
- ЖК на Кутузовском проспекте, д. 36
- Жилой дом на проспекте Вернадского
- ул. Петра Алексеева, вл. 12а
- ЖК на ул. Лукинская, вл. 15-17
- Жилой дом на ул. Красных Зорь
- ЖК на ул. Багрицкого
- МФК "Match Point"
- ул. Горбунова, вл. 12, корп. 2
- Мичуринский проспект, вл. 30Б
- Филевский бульвар, вл. 12, корп. 4
- ЖК на ул. Озерная, вл. 35, стр. 1, 2, 4
- ЖК на ул. Гришина, вл. 16, стр. 1
- ЖК "Клубный дом на Молодогвардейской"
- Жилой дом на Гродненской улице
- ЖК "АкадемикА"
- ул. Никулинская, вл. 2А
- ЖК в промзоне Западного речного порта
- ЖК на пересечении ул. Чоботовской и Боровского шоссе ПРОЕКТ
- ЖК "Vander Park"
- Жилой дом "На Барклая"
- ЖД ул. Веерная, корп. 16
- Жилой квартал в Солнцево
- Мичуринский пр-т, Олимпийская Деревня, вл. 10, корп. 1
- ЖК в р-не Фили-Давыдково, кв. 69, ул. Герасима Курина, вл. 42
- ул. Большая Очаковская, д. 12 (Мкр. для военнослужащих-очередников)
- Мкр. "Мегаполис"
- ЖК "Мичуринский"
- ЖК «Рублевские огни»
- СЗАО - Северо-Западный административный округ
- ЖК "Хорошевский"
- ЖК "Город на реке Тушино-2018" (ЖК "Тушино 2018")
- ЖК "Алые паруса"
- ЖК "Утесов" (ЖК "Карамышевский бриз")
- ЖК "Wellton Park"
- ЖК "Сердце столицы"
- Квартал "Union Park" ("Юнион парк")
- ЖК "Лица"
- Апарт-отель "YE’S"
- ЖК "Life-Митинская Ecopark"
- МФК "Новая Пресня"
- МФК "Лайнер"
- Апарт-отель "YE’S"
- ЖК "Лица"
- ЖК "Сердце столицы"
- ЖК "Wellton Park"
- МФК на пересечении пр. Маршала Жукова и ул. Народного ополчения ПРОЕКТ
- ЖК "Wellton Park - Золотая миля"
- ЗелАО - Зеленоград
- ЖК "Митино-Дальнее" (г. Зеленоград)
- ЖК "Парк Таун" в Брехово (г. Зеленоград)
- ЖК "Жемчужина Зеленограда"
- ЖК "Мелодия леса" (п. Андреевка)
- ЖК "Flight City" (ЖК "Медиа-Сити")
- ЖК "Новый Зеленоград" (д. Рузино)
- ЖК "Friday village" (ЖК "Фрайдей вилледж")
- Поселок "Андреевский парк" (д. Баранцево)
- ЖК на ул. Панфилова, д. 32 и 34
- ЖК "Менделеевский"
- ЖК в районе Крюково
- ЖК в г. Зеленоград, мкр. 6, корп. 619
- Поселок "Зеленоградский"
- Микрорайон "Зеленый бор" (г. Зеленоград)
- НАО - Новомосковский административный округ
- ЖК "Марушкино" (п. Марушкино)
- ЖК "Зеленая Москва - 2" (ЖК "Внучок", д. Марушкино)
- Таунхаусы "Юрьев Сад" (п. Воскресенское)
- Мкр. "Солнцево-Парк" (с/п Внуковское)
- ЖК "Дубровка"
- ЖК "Garden park Эдальго" (ЖК "Легенда № 18", п. Коммунарка)
- ЖК "Новые Ватутинки. Мкр. Центральный"
- Город-парк "Переделкино Ближнее" (д. Рассказовка)
- Город-парк "Первый Московский" (г. Московский)
- ЖК "Калипсо 2" (г. Щербинка)
- ЖК "Новое Бутово" г. Щербинка
- ЖК "Марьино Град" (п. Марьино)
- ЖК "Татьянин Парк" (д. Говорово)
- ЖК "Прима Парк" (г. Щербинка)
- Квартал таунхаусов "Вяземское" (д. Николо-Хованское)
- Мкр. "Бутовские Аллеи"
- ЖК "Бунинский" (д. Столбово)
- Ул. Овражная, корп. 3, 4, 5, 6, 7, 8, 9, 10, 11 (г. Щербинка)
- ЖК "Москва А101" (п. Коммунарка)
- Таунхаусы "Фестиваль" (д. Сосенки)
- ЖК "Андерсен" (п. Десна)
- ЖК "Новое Крёкшино" (п. Крекшино)
- ЖК "Спортивный квартал" (п. Марьино)
- ЖК "Внуково 2016" (д. Ликово)
- Квартал таунхаусов "Никольское" (ЖК "Никольское -Таун")
- ЖК "Рассказово" (д. Рассказовка)
- ЖК "Приозерный"
- г. Щербинка, ул. Железнодорожная, д. 39, корп. 1, 2
- ЖК "Пригород М 3" ПРОЕКТ
- ЖК "Новая Звезда" (ЖК "Звезда Газпрома") п. Газопровод
- ЖК "Испанские кварталы" (п. Николо-Хованское)
- ЖК "Спорт-Таун" (п. Марьино)
- ЖК "Белая звезда" (г. Щербинка)
- ЖК "Бунинские луга" (д. Столбово)
- ЖК "Староселье" (д. Староселье) ПРОЕКТ
- г. Щербинка, мкр. 3, корп. 6
- ЖК "Магистр" (п. Коммунарка)
- Ленинский район, пос. Мосрентген, д. 1
- г. Щербинка, ул. Индустриальная, д. 6
- Жилой комплекс "Калипсо"
- г. Щербинка, ул. Чехова, д.10 (Почтовый адрес ул. Чехова д. 4)
- Ленинский район, пос. Мосрентген, д. 37
- мкр. "Град Московский", кв. 1
- Жилой дом "Eco"
- г. Щербинка, ул. Спортивная, д. 5, 9, 10
- мкр. "Град Московский", кв. 4
- Поселок "Николино-Подворье" (г. Одинцово)
- г. Московский, мкр. Град Московский, кв. 3
- ЖК "Сандей Хиллз" (Мкр. "Новое Воскресенское", п. Воскресенское)
- Таунхаусы "Лесные Поляны" (д. Газопровод)
- ЖК в п. Кокошкино, ул. Труда
- г. Московский, мкр. "Град Московский", квартал 2
- ЖК "Gazoil Park" (с/п Десёновское)
- ЖК "Рутаун" (г. Московский)
- ЖК "Остафьево" (п. Остафьево)
- ЖК "Юго-Западный" (г. Московский)
- Жилой район "Квартал А101"
- Поселок "Бристоль" (г. Московский)
- Мкр. Родники (п. Знамя Октября)
- ЖК "Коммунарка" (п. Коммунарка)
- ЖК "Эдальго" (п. Коммунарка)
- Поселок Фабрики 1 Мая
- г. Щербинка, ул. Садовая, д. 9
- ЖК близ д. Десна ПРОЕКТ
- Жилой комплекс "Калужский"
- ЖК на месте Марьинской птицефабрики ПРОЕКТ
- ЖК "Зеленая Москва - 1" (д. Марушкино)
- ЖК рядом с д. Ямонтово ПРОЕКТ
- МФК в п. Московский ПРОЕКТ
- ЖК рядом с д. Бачурино ПРОЕКТ
- ЖК в п. Мосрентген ПРОЕКТ
- ЖК "Город-сад" (д. Середнево) ПРОЕКТ
- ЖК "Калипсо 3" (г. Щербинка) ПРОЕКТ
- ЖСК "Роговский" (п. Рогово)
- ЖК в районе д. Румянцево ПРОЕКТ
- ЖК "Старая битца" (д. Бачурино) ПРОЕКТ
- ЖК "Новотроицкий" (п. Мосрентген)
- ЖК "Кокошкино" (п. Кокошкино)
- ЖК "Николин Парк" (д. Николо-Хованское)
- Проект "Румянцево" (д. Румянцево)
- ЖК "Баркли Медовая Долина" (ЖК "Диагональ", д. Крекшино) ПРОЕКТ
- ЖК близ д. Десна
- ЖК в районе д. Румянцево
- ЖК в п. Мосрентген
- ЖК "Зеленая Москва - 1"
- ЖК "Калипсо 3"
- МФК в п. Московский
- ЖК на месте Марьинской птицефабрики
- ЖК рядом с д. Ямонтово
- ЖК "Старая битца"
- ЖК "Баркли Медовая Долина"
- Таунхаусы "Бремен" (ЖК "Лейпциг")
- Таунхаусы "Синергия"
- ЖК рядом с д. Бачурино
- ЖК "Город-сад"
- Квартал таунхаусов "Кронбург"
- п. Западная Долина
- ЖК "Кокошкино"
- ЖК "Зеленая линия"
- ЖК «Калужский»
- Проект "Румянцево"
- ЖК "Николин Парк"
- ТАО - Троицкий административный округ
- Таунхаусы "Новотроицкий" (п. Первомайское)
- ЖК "Ново-Никольское" (д. Ивановское)
- ЖК "Троицкая ривьера" (п. Троицкое Заречье)
- Поселок "Академия парк" (п. Бараново)
- Таунхаусы "Наполеон" (д. Каменка)
- Таунхаусы "Наполеон" (д. Каменка)
- ЖК "Борисоглебское" (д. Зверево)
- ЖК "Кутузовские березы" (п. Рогово)
- ЖК "Тройка" (г. Троицк)
- Апартаменты "Вилла Рива" ("Villa Riva")
- ЖК "Легенда" (г. Троицк)
- ЖСК "Роговский"
- Таунхаусы "Европейская долина-2" (с/п Щаповское)
- ЖК "Лесная сказка" (г. Троицк)
- Эко-район "Борисоглебское-2" (д. Зверево)
- Таунхаусы "Подмосковные вечера" (с/п Первомайское)
- Жилой комплекс "Западный стандарт" (г. Троицк)
- ЖК "Березовый мир" (г. Троицк)
- ЖК "Киевское шоссе" (п. Первомайское)
- ЖК "Первомайское" (п. Первомайское)
- Поселок таунхаусов в деревне Каменка ПРОЕКТ
- ЖК вблизи дер. Рогозинино ПРОЕКТ
- Таунхаусы "Троицкий парк" (Таунхаусы "Изумрудные аллеи")
- ЖК "Олимпийская деревня Ватутинки" ПРОЕКТ
- Таунхаусы "Рависсант" (д. Каменка)
- ЖК "Ново-Софьино" (д. Софьино) ПРОЕКТ
- Поселок "Остров Эрин" (с/п Краснопахарское)
- Жилой дом в д. Юдановка ПРОЕКТ
- Экопарк "Горчаково" (д. Горчаково)
- Таунхаусы "Марсель" (п. Вороновское)
- Жилой дом в д. Ожигово ПРОЕКТ
- ЖК "Изумрудный" (г. Троицк)
- г. Троицк, мкр. Солнечный (ЖК "Солнечный")
- ЖК "Vnukovo Sport Village" (Внуково Спорт Вилладж) д. Рогозинино
- ЖК "Новые Ватутинки. Южный квартал" (д. Десна) 2 оч
- ЖК "Акварель" (п. Щапово)
- ЖК "Шишкин лес" (Троицкий АО, п. Шишкин Лес)
- ЖК "Престиж" (п. Киевский)
- Новостройки Подмосковья на расстоянии до 15 км от МКАД
- Форум жителей ЖК - «Государев дом»
- Форум жителей ЖК - «Пригород лесное» (г. Видное)
- Форум жителей ЖК - «Прима Парк» (г. Щербинка)
- Форум жителей ЖК - « Железнодорожная, д. 39»
- Форум жителей ЖК - «Бунинский»
- Форум жителей ЖК - «Марьино Град» (п. Марьино)
- Форум жителей ЖК - «Татьянин Парк» (д. Говорово)
- Форум жителей Мкр. - «Бутовские Аллеи»
- Форум жителей ЖК - «Николин Парк» (д. Николо-Хованское)
- ЖК - «в районе д. Румянцево»
- Форум жителей ЖК - «Солнечная система»
- Форум жителей ЖК - «Люберецкий»
- Форум жителей ЖК - «Красногорский»
- Форум жителей ЖК - «Люберцы 2016»
- Форум жителей ЖК - «ART (АРТ)»
- Форум жителей ЖК - «Новые Островцы»
- Форум жителей ЖК - «Подрезково»
- Форум жителей ЖК - «Пятницкие кварталы»
- Форум жителей ЖК - «Белые росы»
- Форум жителей Микрорайон - «Изумрудные холмы»
- Форум жителей ЖК - «Спутник»
- Форум жителей ЖК - «Одинцовский Парк»
- Форум жителей ЖК «Ромашково»
- Форум жителей - «Булатниково»
- Форус жителей - «Рублевский»
- Форум жителей ЖК - «Маяк»
- Форум жителей ЖК - «Спасский мост»
- Форум жителей ЖК - «Государев дом»
- Форум жителей ЖК - «Гусарская баллада»
- Форум жителей ЖК - «Новое Медведково»
- Форум жителей ЖК - «Квартал Европа»
- Форум жителей ЖК - «Столичный»
- Форум жителей ЖК - «Соколиный форт»
- Форум жителей ЖК - «Измайлово Lane»
- Форум жителей ЖК - «Константа»
- Форум жителей ЖК - «Яуза Парк»
- Форум жителей ЖК - «ул Мельникова»
- Форум жителей ЖК - «Некрасовка-Парк»
- Форум жителей ЖК - «Символ»
- Форум жителей ЖК - «на Душинской улице»
- Форум жителей ЖК - «SREDA»
- Форум жителей ЖК - «Лефорт»
- Форум жителей ЖК - «126 квартал»
- Форум жителей ЖК - «40 лет Октября»
- Форум жителей ЖК - «Царицыно»
- Форум жителей ЖК - «Нагатино-Садовники»
- Форум жителей ЖК - «Царицыно-2»
- Форум жителей ЖК - «Донской Олимп»
- Форум жителей ЖК - «Варшавские холмы» (Варшавское шоссе 141, Варшавские огни)
- Форум жителей ЖК - «Barkli Residence»
- Форум жителей ЖК - «Старт-формат» (мкр. Царицыно-2)
- Форум жителей ЖК - «Парк Легенд»
- Форум жителей ЖК - «Дом на Самаринской»
- Форум жителей ЖК - «Дом на Нагатинской»
- Форум жителей ЖК - «Дом на Серпуховском валу»
- Форум жителей ЖК - «V-House»
- Форум жителей ЖК - «на ул Маршала Захарова»
- Форум жителей ЖК - «ЗИЛАРТ»
- Форум жителей ЖК - «Технопарк»
- Форум жителей ЖК - «Нагорная 7»
- Форум жителей ЖК - «Versis»
- Форум жителей ЖК - «Новые Черемушки»
- Форум жителей ЖК - «Эталон-Сити»
- Форум жителей ЖК - «Ландыши»
- Форум жителей ЖК - «на Симоновской набережной»
- Форум жителей ЖК - «на ул. Дмитрия Ульянова»
- Форум жителей Апарт-комплекса - « Нахимовский 21»
- Форум жителей ЖК - «Потапово Lite»
- Форум жителей ЖК - «Академ Палас»
- Форум жителей ЖК - «ФилиЧета - 2»
- Форум жителей ЖК - «Долина сетунь»
- Форум жителей МФК - «Снегири-Эко»
- Форум жителей ЖК - «Мосфильмовский»
- Форум жителей МФК - «Фили Град»
- Форум жителей ЖК - «О7»
- Форум жителей ЖК - «Квартал 38А»
- Форум жителей ЖК - «Лобачевский»
- Форум жителей - «Штаб-квартиры на Мосфильмовской»
- Форум жителей ЖК - «Волынская»
- Форум жителей ЖК - «Раевский»
- Форум жителей ЖК - «Лучи»
- Форум жителей ЖК - «Крылатский»
- Форум жителей ЖК - «The MID»
- Форум жителей ЖК - «Loft 151»
- Форум жителей ЖК - «Atlantic Apartments»
- Форум жителей ЖК - «Мещерский лес»
- Форум жителей ЖК - «Wood House»
- Форум жителей ЖК - «Воробьев дом»
- Форум жителей Лофт-апартаментов - « Klein House» (Клейн Хаус)
- Форум жителей МФК - « на Мичуринском проспекте, вл. 30Б»
- Форум жителей Жилого Дома - «Ельнинская, 14Б»
- Форум жителей ЖК - «Ярцевская 24»
- Форум жителей ЖК - «Флотилия»
- Форум жителей ЖК - «Кристалл»
- Форум жителей ЖК - «Водный»
- Форум жителей Апарт-комплекса - «Loft Park» (лофт)
- Форум жителей ЖК - «ВТБ Арена Парк»
- Форум жителей ЖК - «ApartVille Fitness&Spa Resort» (Апарт Вилль)
- Форум жителей ЖК - «Пригород лесное»
- Форум жителей ЖК - «Солнечная система»
- Форум жителей ЖК - «Люберецкий»
- Форум жителей ЖК - «Vesna (Весна)»
- Форум жителей ЖК - «Красногорский»
- Форум жителей ЖК - «Люберцы 2016»
- Форум жителей ЖК - «ART (АРТ)»
- Форум жителей ЖК - «Новые Островцы»
- Форум жителей ЖК - «Сколковский»
- Форум жителей ЖК - «Подрезково»
- Форум жителей ЖК - «Зеленые аллеи»
- Форум жителей ЖК - «Пятницкие кварталы»
- Форум жителей ЖК - «Белые росы»
- Форум жителей Микрорайон - «Изумрудные холмы»
- Форум жителей ЖК - «Спутник»
- Форум жителей ЖК - «Одинцовский Парк»
- Форум жителей ЖК - «Ромашково»
- Форум жителей ЖК - «Булатниково»
- Форум жителей ЖК - «Рублевский»
- Форум жителей ЖК - «Маяк»
- Форум жителей ЖК - «Новое Тушино»
- Форум жителей ЖК - «Спасский мост»
- Форум жителей ЖК - «Государев дом»
- Форум жителей ЖК - «Домодедово парк»
- Форум жителей ЖК - «Гусарская баллада»
- Форум жителей ЖК - «Квартал Европа»
- Форум жителей ЖК - «Столичный»
- Форум жителей ЖК - «Ярославский»
- Форум жителей ЖК - «Планерный»
- Форум жителей ЖК - «Октябрь»
- Форум жителей ЖК - «Оранж Парк»
- Форум жителей ЖК - «Восточная Европа»
- Форум жителей ЖК - «Ленинградский»
- Форум жителей ЖК - «Ирис»
- Форум жителей ЖК - «Московские Водники»
- Форум жителей ЖК - «Две столицы»
- Форум жителей ЖК - «Афродита»
- Форум жителей ЖК - «Путилково»
- Форум жителей ЖК - «Отрада»
- Форум жителей ЖК - «Лидер парк»
- Форум жителей ЖК - «Бородино»
- Форум жителей ЖК - «Родники»
- Форум жителей ЖК - «Рождественский»
- Форум жителей ЖК - «Новорижский»
- Форум жителей ЖК - «Рациональ»
- Форум жителей ЖК - «Южное Видное»
- Форум жителей ЖК - «Болтино»
- Форум жителей ЖК - «Левобережный»
- Форум жителей ЖК - «Авентин»
- Форум жителей ЖК - «Союзный»
- Форум жителей ЖК - «Бутово Парк»
- Форум жителей ЖК - «Северный» (Дмитровское шоссе)
- Форум жителей ЖК - «Некрасовский»
- Новостройки Подмосковья на расстоянии более 15 км от МКАД
- Форум жителей Поселка - «Зеленоградский»
- Форум жителей ЖК - «Мелодия леса»
- Форум жителей ЖК - «Vesna (Весна)»
- Форум жителей ЖК - «Сколковский»
- Форум жителей ЖК - «Зеленые аллеи»
- Форум жителей ЖК - «Весенний»
- Форум жителей ЖК - «Сказка»
- Форум жителей ЖК - «Купавино»
- Форум жителей ЖК - «Молодежный»
- Форум жителей ЖК - «Анискино»
- Форум жителей ЖК - «Домодедово парк»
- Форум жителей ЖК - «Трубино»
- Форум жителей ЖК - «Ренессанс»
- Форум жителей ЖК - «Re form»
- Форум жителей ЖК - «Золотая Звезда»
- Форум жителей ЖК - «Лефорт»
- Форум жителей ЖК - «126 квартал»
- Форум жителей ЖК - «на Артюхиной улице»
- Форум жителей ЖК - «Малая истра»
- Форум жителей ЖК - «Весенний»
- Форум жителей ЖК - «Сказка»
- Форум жителей ЖК - «Купавино»
- Форум жителей ЖК - «Молодежный»
- Форум жителей ЖК - «Анискино»
- Форум жителей ЖК - «Трубино»
- Форум жителей ЖК - «Новое Медведково»
- Форум жителей ЖК - «Одинбург»
- Форум жителей ЖК - «Андреевка»
- Форум жителей ЖК - «Малая Истра»
- Форум жителей ЖК - «Раменский»
- Форум жителей ЖК - «Видный Берег»
- Форум жителей ЖК - «Солнечный»
- Форум жителей ЖК - «Новое Измайлово»
- Форум жителей ЖК - «Высокие Жаворонки»
- Форум жителей ЖК - «Успенский»
- Форум жителей ЖК - «Потапово»
- Форум жителей ЖК - «Новое Пушкино»
- Форум жителей ЖК - «Березки» (Тучково)
- Форум жителей ЖК - «Березки»
- Форум жителей ЖК - «Лесной городок» (Одинцово)
- Форум жителей ЖК - «Лермонтовский»
- Форум жителей ЖК - «Новое Домодедово»
- Форум жителей ЖК - «Северный» (Подольск)
- Форум жителей ЖК - «Садовые кварталы»
- Форум жителей ЖК - «Wine House»
- Форум жителей ЖК - «Ситер (IQ Квартал)»
- Форум жителей ЖК - «Loft Post»
- Форум жителей ЖК - «Loft Factory»
- Форум жителей ЖК - «Хорошевский»
- Форум жителей ЖК - «Тушино-2018»
- Форум жителей ЖК - «Алые паруса»
- Форум жителей ЖК - «Утесов»
- Форум жителей ЖК - «Wellton Park»
- Форум жителей ЖК - «Сердце столицы»
- Форум жителей ЖК - «Union Park»
- Форум жителей ЖК - «Лица»
- Форум жителей ЖК - «Терлецкий парк» и «Московские окна»
- Форум жителей ЖК - «Апарт-отель YES»
- Форум жителей ЖК - «Наследие» и ЖК - «Преображенский»
- Форум жителей ЖК - «Консент»
- Форум жителей ЖК - «Ренессанс»
- Форум жителей ЖК - «Соколиный форт»
- Форум жителей ЖК - «Измайлово Lane»
- Форум жителей ЖК - «Re form»
- Форум жителей ЖК - «Золотая Звезда»
- Форум жителей ЖК - «Константа»
- Форум жителей ЖК - «Яуза Парк»
- Форум жителей ЖК - «ул Мельникова»
- Форум жителей ЖК - «Некрасовка-Парк»
- Форум жителей ЖК - «Символ»
- Форум жителей ЖК - «на Душинской улице»
- Форум жителей ЖК - «SREDA»
- Форум жителей ЖК - «Лефорт»
- Форум жителей ЖК - «126 квартал»
- Форум жителей ЖК - «на Артюхиной улице»
- Форум жителей ЖК - «40 лет Октября»
- Форум жителей ЖК - «Царицыно»
- Форум жителей ЖК - «Нагатино-Садовники»
- Форум жителей ЖК - «Царицыно-2»
- Форум жителей ЖК - «Донской Олимп»
- Форум жителей ЖК - «Варшавские холмы» (Варшавское шоссе 141, Варшавские огни)
- Форум жителей ЖК - «Barkli Residence»
- Форум жителей ЖК - «River Park»
- Форум жителей ЖК - «Старт-формат» (мкр. Царицыно-2)
- Форум жителей ЖК - «Парк Легенд»
- Форум жителей ЖК - «Дом на Самаринской»
- Форум жителей ЖК - «Дом на Нагатинской»
- Форум жителей ЖК - «Дом на Серпуховском валу»
- Форум жителей ЖК - «V-House»
- Форум жителей ЖК - «на ул Маршала Захарова»
- Форум жителей ЖК - «ЗИЛАРТ»
- Форум жителей ЖК - «Технопарк»
- Форум жителей ЖК - «Нагорная 7»
- Форум жителей ЖК - «Versis»
- Форум жителей ЖК - «Новые Черемушки»
- Форум жителей ЖК - «Эталон-Сити»
- Форум жителей ЖК - «Ландыши»
- Форум жителей ЖК - «на Симоновской набережной»
- Форум жителей ЖК - «на ул. Дмитрия Ульянова»
- Форум жителей Апарт-комплекса - « Нахимовский 21»
- Форум жителей ЖК - «Потапово Lite»
- Форум жителей ЖК - «Академ Палас»
- Форум жителей ЖК - «ФилиЧета - 2»
- Форум жителей ЖК - «Долина сетунь»
- Форум жителей МФК - «Снегири-Эко»
- Форум жителей ЖК - «Мосфильмовский»
- Форум жителей МФК - «Фили Град»
- Форум жителей ЖК - «О7»
- Форум жителей ЖК - «Квартал 38А»
- Форум жителей ЖК - «Лобачевский»
- Форум жителей - «Штаб-квартиры на Мосфильмовской»
- Форум жителей ЖК - «Волынская»
- Форум жителей ЖК - «Раевский»
- Форум жителей ЖК - «Лучи»
- Форум жителей ЖК - «Крылатский»
- Форум жителей ЖК - «The MID»
- Форум жителей ЖК - «Loft 151»
- Форум жителей ЖК - «Atlantic Apartments»
- Форум жителей ЖК - «Мещерский лес»
- Форум жителей ЖК - «Wood House»
- Форум жителей ЖК - «Воробьев дом»
- Форум жителей Лофт-апартаментов - « Klein House» (Клейн Хаус)
- Форум жителей МФК - « на Мичуринском проспекте, вл. 30Б»
- Форум жителей Жилого Дома - «Ельнинская, 14Б»
- Форум жителей ЖК - «Ярцевская 24»
- Форум жителей ЖК - «Флотилия»
- Форум жителей ЖК - «Кристалл»
- Форум жителей ЖК - «Водный»
- Форум жителей Апарт-комплекса - «Loft Park» (лофт)
- Форум жителей ЖК - «ВТБ Арена Парк»
- Форум жителей ЖК - «ApartVille Fitness&Spa Resort» (Апарт Вилль)
- Форум жителей ЖК - «Loft time» (лофт тайм)
- Форум жителей МФК - «Искра-Парк»
- Форум жителей ЖК - «Клубный дом Юннаты»
- Форум жителей ЖК - «Art Residence» (Арт Резиденс)
- Форум жителей ЖК - «Карамель»
- Форум жителей Лофт-квартал - «AEROLOFTS»
- Форум жителей ЖК - «Белый парк 1-2»
- Форум жителей ЖК - «Невский»
- Форум жителей ЖК - «Суббота»
- Форум жителей ЖК - «Дыхание»
- Форум жителей Апарт-комплекс - «Клевер Лэнд»
- Форум жителей ЖК - «Город»
- Форум жителей ЖК - «Митино-Дальнее»
- Форум жителей ЖК - «Назарьевские пруды»
- Форум жителей ЖК - «Парк Таун»
- Форум жителей ЖК - «Жемчужина Зеленограда»
- Форум жителей ЖК - «Мелодия леса»
- Форум жителей ЖК - «Новый Зеленоград»(д. Рузино)
- Форум жителей ЖК - «Flight City» (Медиа-Сити)
- Форум жителей ЖК - «Friday village» (Фрайдей вилледж)
- Форум жителей Коттеджного поселка - «Андреевский парк»
- Форум жителей ЖК - «Марушкино»
- Форум жителей ЖК - «Зеленая Москва - 2»
- Форум жителей Таунхаусов - «Юрьев Сад»
- Форум жителей Мкр. - «Солнцево-Парк» (с/п Внуковское)
- Форум жителей ЖК - «Дубровка»
- Форум жителей ЖК - «Garden park Эдальго» (ЖК "Легенда № 18", п. Коммунарка)
- Форум жителей Город-парк - «Переделкино Ближнее» (д. Рассказовка)
- Форум жителей ЖК - «Новые Ватутинки. Мкр. Центральный»
- Форум жителей Город-парка - «Первый Московский» (г. Московский)
- Форум жителей ЖК - «Калипсо 2» (г. Щербинка)
- Форум жителей ЖК - «Новое Бутово» г. Щербинка
- Форум жителей ЖК - «Марьино Град»
- Форум жителей ЖК - «Татьянин Парк»
- Форум жителей Квартал таунхаусов - «Вяземское»
- Форум жителей ЖК - «Прима Парк»
- Форум жителей Мкр. - «Бутовские Аллеи»
- Форум жителей ЖК - «Бунинский»
- Форум жителей Микрорайона - «ОВРАЖНЫЙ»
- Форум жителей ЖК - «Андерсен» (п. Десна)
- Форум жителей Таунхаусов - «Фестиваль»
- Форум жителей ЖК - «Новое Крёкшино»
- Форум жителей ЖК - «Спортивный квартал»
- Форум жителей ЖК - «Внуково 2016»
- Форум жителей Квартала таунхаусов - «Никольское» (Никольское -Таун)
- Форум жителей ЖК - «Рассказово»
- Форум жителей ЖК - «Приозерный»
- Форум жителей ЖК - « Железнодорожная, д. 39»
- Форум жителей ЖК - «Пригород М3»
- Форум жителей ЖК - «Новая Звезда» (Звезда Газпрома)
- Форум жителей ЖК - «Испанские кварталы» (п. Николо-Хованское)
- Форум жителей ЖК - «Белая звезда»
- Форум жителей ЖК - «Спорт-Таун»
- Форум жителей ЖК - «Бунинские луга»
- Форум жителей ЖК - «Староселье»
- Форум жителей Таунхаусов - «Новотроицкий»
- Форум жителей ЖК - «Ново-Никольское»
- Форум жителей ЖК - «Троицкая ривьера»
- Форум жителей Поселока - «Академия парк»
- Форум жителей Таунхаусов - «Наполеон»
- Форум жителей Таунхаусов - «Ширяевские усадьбы»
- Форум жителей ЖК - «Кутузовские березы»
- Форум жителей ЖК - «Борисоглебское»
- Форум жителей ЖК - «Тройка»
- Форум жителей Апартаментов - «Вилла Рива» (Villa Riva)
- Форум жителей ЖСК - «Роговский»
- Форум жителей ЖК - «Легенда»
- Форум жителей Эко-района - «"Борисоглебское-2»
- Форум жителей ЖК - «Лесная сказка» (Ногинск)
- Форум жителей Таунхаусов - «Европейская долина-2»
- Форум жителей МФК - «Новая Пресня»
- Форум жителей ЖК - «Life-Митинская Ecopark»
- Форум жителей ЖК - «Sky House»
- Форум жителей МФК - «на пересечении пр. Маршала Жукова и ул. Народного ополчения»
- Форум жителей МФК - «Лайнер»
- Форум жителей ЖК - «Сады Пекина»
- Форум жителей ЖК - «Royal House on Yauza»
- Форум жителей МФК - «Поварская» (Театральный дом) апартаменты
- Форум жителей Клубного дома - «Mon Cher»
- Форум жителей ЖК - «Red Side» (Ред Сайд)
- Форум жителей ЖК - «Пресненский Вал»
- Форум жителей Жилого Дома - «Остоженка" (Golden Mile private residence)
- Форум жителей ЖК - « St. Nickolas»
- Форум жителей ЖК - «Фабрика Марата»
- Форум жителей ЖК - «Резиденция Монэ»
- Форум жителей МФК- «Balchug Viewpoint» (Балчуг Вьюпоинт)
- Форум жителей ЖК - «Дом на Сретенке»
- Форум жителей МФК - «Balchug Residence» (МФК «Балчуг Резиденс»)
- Форум жителей Апарт-комплекса - «Волга»
- Форум жителей ЖК - «Дом на Люсиновской» (апартаменты)
- Форум жителей Жилого Квартала - « I'M»
- Форум жителей ЖК - «Резиденция Шаболовская слобода»
- Форум жителей ЖК - «Звонарский»
- Форум жителей ЖК - «Дом на Рогожском Валу»
- Форум жителей на территории промзоны - « Грузинский вал»
- Форум жителей ЖК - «Гороховский 12»
- Форум жителей ЖК - «Резиденция на Всеволожском»
- Форум жителей ЖК "Дом на Большом Тишинском переулке"
- Форум жителей ЖК - «Clasico» «Олимпийский, 10»
- Форум жителей Клубного дома - «Chekhov»
- Форум жителей Клубного дома - «Рахманинов»
- Форум жителей ЖК - «Триколор»
- Форум жителей ЖК - «Петр I»
- Форум жителей Клубный дом - «Скай Паркс» (Sky Parks)
- Форум жителей ЖК - «Парк Мира»
- Форум жителей МФК - «Савеловский Сити»
- Форум жителей ЖК - «Староалексеевская»
- Форум жителей ЖК - «1147»
- Форум жителей МФК- «Алекс-Сити»
- Форум жителей ЖК - «Egodom»
- Форум жителей ЖК - «Life-Ботанический сад»
- Форум жителей Мини-город - «Sky City» (High City)
- Форум жителей ЖК - «Дом на Изумрудной»
- Форум жителей Жилой Дом - «на улице Коминтерна»
- Форум жителей Мкр. - « Северный»
- Форум жителей Клубного дома - «на Менжинского»
- Форум жителей Дома - «на ВДНХ»
- Форум жителей Клубный дом - « на Пришвина»
- Форум жителей ЖК - «Двинцев, вл. 14»
- Форум жителей ЖК - «Мичурино-Запад»
- Форум жителей ЖК - «Английский квартал»
- Форум жителей МФК - «Око»
- Форум жителей ЖК - «Кленовый дом»
- Форум жителей ЖК - «Рассвет Loft Studio»
- Форум жителей Клубного дома - «на Котельнической набережной»
- Форум жителей Жилого Квартала - «Березовая аллея»
- Форум жителей Жилого Дома - «в мкр. 1-2-3, корп. 9»
- Форум жителей ЖК - «Кварталы 21/19»
- Форум жителей ЖК - «Город на Рязанке»
- Форум жителей ЖК - «Микрорайон 7Б »
- Форум жителей ЖК - «Большое Кусково»
- Форум жителей ЖК - «Лосиный остров»
- Форум жителей ЖК - «Богородский квартал»
- Форум жителей ЖК - «в Измайлово»
- Форум жителей ЖК - «Штат 18»
- Форум жителей ЖК - « PerovSky »
- Форум жителей МФК - «на ул. Тагильская, вл. 4, стр. 5, 13»
- Форум жителей ЖК - «на ул. Бирюсинка, вл. 4»
- Форум жителей ЖК - «Богородский»
- Форум жителей ЖК - «Рублевские огни»
- Форум жителей Мкр. - «Мегаполис»
- Форум жителей ЖК - «ул. Большая Очаковская, д. 12»
- Форум жителей ЖК - «на ул. Лосиноостровская, вл. 45»
- Форум жителей ЖК - «в р-не Фили-Давыдково, кв. 69, ул. Герасима Курина, вл. 42»
- Форум жителей ЖК «Чемпион парк»
- Форум жителей Жилого Квартала - «в Солнцево»
- Форум жителей ЖК - «ул. Веерная, корп. 16»
- Форум жителей ЖК - «Vander Park»
- Форум жителей Жилого Дома - «На Барклая»
- Форум жителей ЖК - «на ул.Чоботовская»
- Форум жителей ЖК - «в промзоне Западного речного порта»
- Форум жителей ЖК - «ул. Никулинская, вл. 2А»
- Форум жителей ЖК - «АкадемикА»
- Форум жителей Жилого Дома - «на Гродненской улице»
- Форум жителей ЖК - «Клубный дом на Молодогвардейской»
- Форум жителей ЖК - «на ул. Озерная, вл. 35, стр. 1, 2, 4»
- Форум жителей ЖК - «Филевский бульвар, вл. 12, корп. 4»
- Форум жителей ЖК - «Dom» (Дом на ул. Гришина)
- Форум жителей ЖК - «Мичуринский проспект, вл. 30Б»
- Форум жителей ЖК - «ул. Горбунова, вл. 12, корп. 2»
- Форум жителей МФК - «Match Point»
- Форум жителей ЖК - «на ул. Багрицкого»
- Форум жителей ЖК - «на ул. Красных Зорь»
- Форум жителей ЖК - «на ул. Лукинская, вл. 15-17»
- Форум жителей - «ул. Петра Алексеева, вл. 12а»
- Форум жителей Жилого Дома - «на проспекте Вернадского»
- Форум жителей ЖК - «на Кутузовском проспекте, д. 36»
- Форум жителей ЖК - «на ул. Лобачевского, вл. 120»
- Форум жителей ЖК - «на ул. Главмосстроя, корп. 25-27»
- Форум жителей - «на ул. Заречная» (Филевский Парк)
- Форум жителей ЖК - «на Кутузовском проспекте, 16»
- Форум жителей ЖК - «на ул. Береговой проезд, вл. 2-3»
- Форум жителей ЖК - «Николин Парк»
- Форум жителей ЖК - «Калужский»
- Форум жителей ЖК - «Зеленая линия»
- Форум жителей ЖК - «Кокошкино»
- Форум жителей ЖК - «Западная Долина»
- Форум жителей Квартал таунхаусов - «Кронбург»
- Форум жителей ЖК - «Город-сад»
- Форум жителей ЖК - «рядом с д. Бачурино»
- Форум жителей Таунхаусов - «Синергия»
- Форум жителей ЖК - «Баркли Медовая Долина»
- Форум жителей Таунхаусов - «Бремен» «Лейпциг»
- Форум жителей ЖК - «Калипсо 3»
- Форум жителей ЖК - «Старая битца»
- Форум жителей ЖК - «рядом с д. Ямонтово»
- Форум жителей МФК - «в п. Московский»
- Форум жителей ЖКна месте - «Марьинской птицефабрики»»
- Форум жителей ЖК - «Зеленая Москва - 1»
- Форум жителей ЖК - «Gazoil Park»
- Форум жителей ЖК - «в районе д. Румянцево»
- Форум жителей ЖК - «Зеленый бор»
- Форум жителей ЖК - «в г. Зеленоград, мкр. 6, корп. 619»
- Форум жителей Поселка - «Зеленоградский»
- Форум жителей ЖК - «Менделеевский»
- Форум жителей ЖК - «на ул. Панфилова, д. 32 и 34»
- Форум жителей ЖК - «Янтарь apartments»
- Форум жителей ЖК - «Престиж»
- Форум жителей ЖК - «Кронштадтский»
- Форум жителей ЖК - «Акварель»
- Форум жителей ЖК - «Шишкин лес»
- Форум жителей ЖК - «Vnukovo Sport Village» (Внуково Спорт Вилладж)
- Форум жителей ЖК - «Новые Ватутинки. Южный квартал»
- Форум жителей ЖК - «Солнечный»
- Форум жителей ЖК - «Изумрудный»
- Форум жителей Жилом Доме - «в д. Ожигово»
- Форум жителей Танхаусов - «Марсель» (п. Вороновское)
- Форум жителей ЖК Экопарк - «Горчаково"
- Форум жителей Жилого Дома - «д. Юдановка»
- Форум жителей ЖК - «Ново-Софьино»
- Форум жителей ЖК - «Остров Эрин»
- Форум жителей ЖК - «Рависсант»
- Форум жителей ЖК - «Олимпийская деревня Ватутинки»
- Форум жителей Танхаусов - «Троицкий парк» «Изумрудные аллеи»
- Форум жителей ЖК - «Первомайское»
- Форум жителей ЖК - «Березовый мир»
- Форум жителей танхаусов - «Подмосковные вечера»
- Форум жителей Жилого Комплекса - «Западный стандарт»
- Форум жителей ЖК - «Город-сад» (д. Середнево)
- Форум жителей ЖК - «Государев дом»
- Форум жителей ЖК - «Мортонград Путилково»
- Форум жителей ЖК - «Коммунарка»
- Форум жителей ЖК - «Баркли Медовая Долина» «Диагональ»
- Форум жителей ЖК на месте - «Москва а101»
- Форум жителей Поселка Фабрики- «1 Мая»
- Форум жителей ЖК - «Садовая, 9»
- Форум жителей ЖК - «Эдальго» (п. Коммунарка)
- Форум жителей ЖК - «Родники»
- Форум жителей района - «Квартал А101»
- Форум жителей ЖК - «Юго-Западный» (г. Московский)
- Форум жителей ЖК - «Град Московский»
- Форум жителей Поселка - «Николино-Подворье»
- Форум жителей ЖК - «Eco»
- Форум жителей ЖК - «Донской»
- Форум жителей ЖК - «Город Набережных»
- Форум жителей ЖК - «Парк Плаза» (Park Plaza)
- Форум жителей ЖК - «Дом в Чертаново»
- Форум жителей ЖК - «Малая истра»
- Форум жителей ЖК - «Пригород лесное»
- Форум жителей ЖК - «Солнечная система»
- Форум жителей ЖК - «Люберецкий»
- Форум жителей ЖК - «Vesna (Весна)»
- Форум жителей ЖК - «Красногорский»
- Форум жителей ЖК - «Люберцы 2016»
- Форум жителей ЖК - «ART (АРТ)»
- Форум жителей ЖК - «Новые Островцы»
- Форум жителей ЖК - «Сколковский»
- Форум жителей ЖК - «Подрезково»
- Форум жителей ЖК - «Зеленые аллеи»
- Форум жителей ЖК - «Весенний»
- Форум жителей ЖК - «Пятницкие кварталы»
- Форум жителей ЖК - «Сказка»
- Форум жителей ЖК - «Белые росы»
- Форум жителей ЖК - «Купавино»
- Форум жителей ЖК - «Молодежный»
- Форум жителей Микрорайон - «Изумрудные холмы»
- Форум жителей ЖК - «Спутник»
- Форум жителей ЖК - «Одинцовский Парк»
- Форум жителей ЖК - «Ромашково»
- Форум жителей ЖК - «Булатниково»
- Форум жителей ЖК - «Рублевский»
- Форум жителей ЖК - «Маяк»
- Форум жителей ЖК - «Новое Тушино»
- Форум жителей ЖК - «Спасский мост»
- Форум жителей ЖК - «Анискино»
- Форум жителей ЖК - «Государев дом»
- Форум жителей ЖК - «Домодедово парк»
- Форум жителей ЖК - «Гусарская баллада»
- Форум жителей ЖК - «Трубино»
- Форум жителей ЖК - «Новое Медведково»
- Форум жителей ЖК - «Квартал Европа»
- Форум жителей ЖК - «Столичный»
- Форум жителей ЖК - «Одинбург»
- Форум жителей ЖК - «Андреевка»
- Форум жителей ЖК - «Ярославский»
- Форум жителей ЖК - «Малая Истра»
- Форум жителей ЖК - «Планерный»
- Форум жителей ЖК - «Раменский»
- Форум жителей ЖК - «Октябрь»
- Форум жителей ЖК - «Видный Берег»
- Форум жителей ЖК - «Оранж Парк»
- Форум жителей ЖК - «Восточная Европа»
- Форум жителей ЖК - «Ленинградский»
- Форум жителей ЖК - «Ирис»
- Форум жителей ЖК - «Солнечный»
- Форум жителей ЖК - «Московские Водники»
- Форум жителей ЖК - «Две столицы»
- Форум жителей ЖК - «Новое Измайлово»
- Форум жителей ЖК - «Высокие Жаворонки»
- Форум жителей ЖК - «Афродита»
- Форум жителей ЖК - «Путилково»
- Форум жителей ЖК - «Отрада»
- Форум жителей ЖК - «Лидер парк»
- Форум жителей ЖК - «Бородино»
- Форум жителей ЖК - «Родники»
- Форум жителей ЖК - «Успенский»
- Форум жителей ЖК - «Потапово»
- Форум жителей ЖК - «Новое Пушкино»
- Форум жителей ЖК - «Рождественский»
- Форум жителей ЖК - «Новорижский»
- Форум жителей ЖК - «Рациональ»
- Форум жителей ЖК - «Южное Видное»
- Форум жителей ЖК - «Болтино»
- Форум жителей ЖК - «Березки» (Тучково)
- Форум жителей ЖК - «Березки»
- Форум жителей ЖК - «Левобережный»
- Форум жителей ЖК - «Лесной городок» (Одинцово)
- Форум жителей ЖК - «Лермонтовский»
- Форум жителей ЖК - «Новое Домодедово»
- Форум жителей ЖК - «Авентин»
- Форум жителей ЖК - «Союзный»
- Форум жителей ЖК - «Бутово Парк»
- Форум жителей ЖК - «Северный» (Дмитровское шоссе)
- Форум жителей ЖК - «Северный» (Подольск)
- Форум жителей ЖК - «Некрасовский»
- Форум жителей ЖК - «Видный»
- Форум жителей ЖК - «Новогорск Парк»
- Форум жителей ЖК - «Бутовские Аллеи»
- Форум жителей ЖК - «Новоснегирёвский (Новые Снегири)»
- Форум жителей ЖК - «Светолюбово»
- Форум жителей ЖК - «Нахабино»
- Форум жителей ЖК - «Пятиречье»
- Форум жителей ЖК - «Правый берег»
- Форум жителей ЖК - «Лесной городок»
- Форум жителей ЖК - «Битцевские холмы»
- Форум жителей ЖК - «Голландский квартал»
- Форум жителей ЖК - «Sampo (Сампо)»
- Форум жителей ЖК - «Альфа Центавра»
- Форум жителей ЖК - «Парковые аллеи»
- Форум жителей ЖК - «Мелодия»
- Форум жителей ЖК - «Малаховское озеро» (коттеджный поселок)
- Форум жителей ЖК - «Аристово-Митиное»
- Форум жителей ЖК - «Микрорайон 1 мая»
- Форум жителей ЖК - «Московский»
- Форум жителей ЖК - «Сосновый бор»
- Форум жителей ЖК - «Авиатор»
- Форум жителей ЖК - «Авиатор» (Химки)
- Форум жителей ЖК - «Родионово»
- Форум жителей ЖК - «Театральный парк»
- Форум жителей ЖК - «Парад Планет»
- Форум жителей ЖК - «Красногорск Парк»
- Форум жителей ЖК - «ЗаМитино»
- Форум жителей ЖК - «Да Винчи»
- Форум жителей ЖК - «Ньютон»
- Форум жителей Апартаментов - «Loft Garden" (Лофт Гарден)»
- Форум жителей ЖК - «Измайлово Lane»
- Форум жителей ЖК - «Виноградный»
- Форум жителей ЖК - «Золотой Треугольник»
- Форум жителей ЖК - «МПИ»
- Форум жителей ЖК - «Искры радости»
- Форум жителей ЖК - «Высоковольтный пр-д»
- Форум жителей ЖК - «Юрлово»
- Форум жителей ЖК - «LIFE - Сходненская»
- Форум жителей ЖК - «Загорье»
- Форум жителей ЖК - «Вершинино»
- Форум жителей ЖК - «M-House»
- Форум жителей ЖК - «Аннинский»
- Форум жителей ЖК - «Нагорный»(Клубный дом "Кант")
- Форум жителей ЖК - «Фортепиано»
- Форум жителей ЖК - «Новоясеневский»
- Форум жителей ЖСК - «Миклухо-Маклая»
- Форум жителей ЖК - «Авеню 77»
- Форум жителей ЖК - «Влюберцы»
- Форум жителей ЖК - «Горизонт»
- Форум жителей Микрорайона - «Новое Бисерово»
- Форум жителей ЖК - «Императорские Мытищи»
- Форум жителей ЖК - «Приозерный» (Ленинский район)
- Форум жителей ЖК - «Симферопольский»
- Форум жителей ЖК - «Сходня Парк»
- Форум жителей ЖК - «Брюсов парк»
- Форум жителей ЖК - «Центральный» (Щелковский район)
- Форум жителей ЖК - «Центральный» (город Долгопрудный)
- Форум жителей ЖК - «Центральный» (город Одинцово)
- Форум жителей ЖК - «Центральный»(город Воскресенск)
- Форум жителей ЖК - «Центральный» (город Пушкино)
- Форум жителей ЖК - «Центральный» (город Звенигород)
- Форум жителей ЖК - «на ул. Шевченко»
- Форум жителей ЖК - «Петровский квартал»
- Форум жителей ЖК - «Поречье»
- Форум жителей ЖК - «Загородный квартал»
- Форум жителей ЖК - «Кварта»
- Форум жителей ЖК - «Опалиха О3»
- Форум жителей Микрорайона - «Лобня Сити»
- Форум жителей ЖК - «Любимое Домодедово (Западный)»
- Форум жителей Микрорайона - «Новый Клин»
- Форум жителей Микрорайона - «Ареал»
- Форум жителей ЖК - «Дружный»
- Форум жителей ЖК - «Панорама Сколково»
- Форум жителей ЖК - «Павловский квартал»
- Форум жителей ЖК - «Горный»
- Форум жителей ЖК - «Чайка»
- Форум жителей ЖК - «Ольгино Парк»
- Форум жителей ЖК - «Олимпийский»
- Форум жителей ЖК - «Олимпийский» (г.Чехов)
- Форум жителей ЖК - «Северный парк»
- Форум жителей ЖК - «Квартал 7»
- Форум жителей ЖК - «Берег»
- Форум жителей ЖК - «Солнечная долина»
- Форум жителей ЖК - «Метелица»
- Форум жителей ЖК - «Венеция»
- Форум жителей ЖК - «Вега»
- Форум жителей ЖК - «Новоград Павлино»
- Форум жителей ЖК - «Опалиха парк»
- Форум жителей ЖК - «Южное Домодедово»
- Форум жителей ЖК - «Бутово Парк 2Б»
- Форум жителей ЖК - «Дача Шатена»
- Форум жителей ЖК - «Кашинцево»
- Форум жителей ЖК - «Дом у реки»
- Форум жителей ЖК - «Поварово-Первый»
- Форум жителей ЖК - «Дом, 1»
- Форум жителей ЖК - «Парковый»
- Форум жителей ЖК - «Заречье»
- Форум жителей ЖК - «Заречье» (деревня Холмы)
- Форум жителей ЖК - «Южный»
- Форум жителей Микрорайон - «Южный» (город Красноармейск)
- Форум жителей Микрорайон - «Южный» (город Подольск)
- Форум жителей ЖК - «Гольяново Парк»
- Форум жителей ЖК - «Князь Голицын»
- Форум жителей ЖК - «Золотые ворота»
- Форум жителей ЖК - «Москвич»
- Форум жителей ЖК - «Заречная слобода»
- Форум жителей ЖК - «Эстет»
- Форум жителей Микрорайон - «Полет»
- Форум жителей Района - «Новокуркино»
- Форум жителей Квартал - «Звездный»
- Форум жителей ЖК - «Северное Сияние»
- Форум жителей ЖК - «Чайка» (город Чехов)
- Форум жителей Микрорайон - «Центр-2»
- Форум жителей ЖК - «Журавлик»
- Форум жителей Микрорайон - «Софьино»
- Форум жителей Микрорайон - «Нахабино Ясное»
- Форум жителей Жилой Дом - «Октябрьский 2016»
- Форум жителей ЖК - «Молодежный-3»
- Форум жителей ЖК - «Молодежный-4»
- Форум жителей ЖК - «Лидер»
- Форум жителей ЖК - «Микрогород в лесу»
- Форум жителей ЖК - « Авеню»
- Форум жителей ЖК - «Европейский»
- Форум жителей ЖК - «Европейский» (город Егорьевск)
- Форум жителей ЖК - «Квартал»
- Форум жителей Микрорайон - «Ильинский парк»
- Форум жителей ЖК - «Новое Измайлово 2»
- Форум жителей ЖК - «Брусчатый поселок»
- Форум жителей ЖК - «Калейдоскоп»
- Форум жителей ЖК - «Радуга»
- Форум жителей ЖК - «Академик -1,2,3»
- Форум жителей ЖК - «Лебединое озеро»
- Форум жителей ЖК - «Рязановский»
- Форум жителей ЖК - «Зеленый остров»
- Форум жителей ЖК - «Рупасовский»
- Форум жителей ЖК - «Жемчужина Виктории»
- Форум жителей ЖК - «Прибрежный»
- Форум жителей ЖК - «Новоселки»
- Форум жителей ЖК - «Пеликан»
- Форум жителей ЖК - «Мое Пушкино»
- Форум жителей Микрорайон - «Белая Дача»
- Форум жителей ЖК - «Маяковский»
- Форум жителей ЖК - «Единый стандарт»
- Форум жителей ЖК - «Князь Долгорукий»
- Форум жителей ЖК - «Лосиная слобода (ГринВилл)»
- Форум жителей ЖК - «Веледниково»
- Форум жителей ЖК - «Благодар»
- Форум жителей ЖК - «Нахабино Центральное»
- Форум жителей ЖК - «Шепчинки»
- Форум жителей ЖК - «Народный»
- Форум жителей ЖК - «Рябиновые аллеи»
- Форум жителей ЖК - «Лермонтов»
- Форум жителей ЖК - « Две Столицы»
- Форум жителей ЖК - «Новое Павлино»
- Форум жителей ЖК - «Мытищи Lite»
- Форум жителей ЖК - «Губернатор»
- Форум жителей ЖК - «Спасские ворота»
- Форум жителей ЖК - «Донской»
- Форум жителей ЖК - «Никольско-Трубецкое»
- Форум жителей ЖК - «Лермонтова, 10»
- Форум жителей ЖК - «Лукино (Алексеевская Роща-2)»
- Форум жителей ЖК - «Лукино»
- Форум жителей ЖК - «МАРЗ»
- Форум жителей ЖК - «КварталГальчино»
- Форум жителей ЖК - «Фортис»
- Форум жителей ЖК - «Wellton Park Новая Сходня»
- Форум жителей ЖК - «Восточный»
- Форум жителей ЖК - «Раменские аллеи (Березовая роща)»
- Форум жителей ЖК - «Красково - Олимпийский»
- Форум жителей ЖК - «Стрешнево»
- Форум жителей ЖК - «Саврасово парк»
- Форум жителей ЖК - «Ольховка 3 (Ольховка 2)»
- Форум жителей ЖК - «Батарейный»
- Форум жителей ЖК - «Новая жизнь»
- Форум жителей ЖК - «Смирновка»
- Форум жителей ЖК - «Зеленая околица»
- Форум жителей ЖК - «Новое Жегалово»
- Форум жителей ЖК - «Триумф»
- Форум жителей ЖК - «Сакраменто»
- Форум жителей ЖК - «Цветочный город»
- Форум жителей ЖК - «Лунево»
- Форум жителей ЖК - «Плещеево»
- Форум жителей ЖК - «Дом на Садовой»
- Форум жителей ЖК - «Новобулатниково»
- Форум жителей ЖК - «Шереметьево парк»
- Форум жителей ЖК - «Red Hills (Ред Хиллс)»
- Форум жителей ЖК - «Руполис-Растуново»
- Форум жителей ЖК - «Восточный берег»
- Форум жителей ЖК - «Like City»
- Форум жителей ЖК - «Высокий берег»
- Форум жителей ЖК - «Южное Кучино 2»
- Форум жителей ЖК - «Чеховский посад»
- Форум жителей ЖК - «Эко Парк Нахабино»
- Форум жителей ЖК - «Высокий Берег»
- Форум жителей ЖК - «Новая Трехгорка»
- Форум жителей ЖК - «Белые камни»
- Форум жителей ЖК - «Новая Коломна»
- Форум жителей ЖК - «Парк Сити»
- Форум жителей ЖК - «Большое Ступино»
- Форум жителей ЖК - «Архимед»
- Форум жителей ЖК - «Вишневый сад»
- Форум жителей ЖК - «Малиновый Ручей»
- Форум жителей ЖК - «Катюшки»
- Форум жителей ЖК - «Гвардейский»
- Форум жителей ЖК - «Космическая гавань»
- Форум жителей ЖК - «Лесная сказка» (Черноголовский)
- Форум жителей ЖК - «Тройка»
- Форум жителей ЖК - «Лесные озера»
- Форум жителей ЖК - «Марьинский»
- Форум жителей ЖК - «Истрово»
- Форум жителей ЖК - «Салтыковка-Престиж»
- Форум жителей ЖК - «Респект»
- Форум жителей ЖК - «Катюшки-2»
- Форум жителей ЖК - «Резиденции Сколково»
- Форум жителей ЖК - «Клязьминская высота»
- Форум жителей ЖК - «МС Южный парк»
- Форум жителей ЖК - «Президентский»
- Форум жителей ЖК - «Успенское»
- Форум жителей ЖК - «Микрорайон 6А»
- Форум жителей ЖК - «Катуар»
- Форум жителей ЖК - «Первомайский»
- Форум жителей ЖК - «Паруса»
- Форум жителей ЖК - «Спортивный»
- Форум жителей ЖК - «Виктория Парк»
- Форум жителей ЖК - «Аристье»
- Форум жителей ЖК - «Благовест»
- Форум жителей ЖК - «Ногинск»
- Форум жителей ЖК - «Восточный-2,3»
- Форум жителей ЖК - «Бриз»
- Форум жителей ЖК - «Роза ветров»
- Форум жителей ЖК - «Гавань»
- Форум жителей ЖК - «Преображенский квартал»
- Форум жителей ЖК - «Авиатор парк»
- Форум жителей ЖК - «Москворецкий»
- Форум жителей ЖК - «Эко-парк Вифанские пруды»
- Форум жителей ЖК - «Губайлово (Юит Парк)»
- Форум жителей ЖК - «Марушкино»
- Форум жителей ЖК - «Олимпийская Ривьера Новогорск»
- Форум жителей ЖК - «Квартал 9-18»
- Форум жителей ЖК - «Струбково»
- Форум жителей ЖК - «Шемякинский дворик»
- Форум жителей ЖК - «Отрада-апарт»
- Форум жителей ЖК - «Авиагородок»
- Форум жителей ЖК - «МираПарк»
- Форум жителей ЖК - «Софронитис»
- Форум жителей ЖК - «Захарово-парк»
- Форум жителей ЖК - «Островцы 2015 (Микрорайон Западный)»
- Форум жителей ЖК - «Шустовъ-Парк (Шахматово-Парк)»
- Форум жителей ЖК - «Букино»
- Форум жителей ЖК - «Level Barvikha Residence»
- Форум жителей ЖК - «Западный»
- Форум жителей ЖК - «Майданово Парк»
- Форум жителей ЖК - «Дом на Баковке»
- Форум жителей ЖК - « Воскресенский»
- Форум жителей ЖК - «Ласточкино»
- Форум жителей ЖК - «Патио Парк»
- Форум жителей ЖК - «Олимпийская деревня Новогорск. Курорт»
- Форум жителей ЖК - «Пушкарь»
- Форум жителей ЖК - «Пустовский»
- Форум жителей ЖК - «Рузский берег»
- Форум жителей ЖК - «Троицкая слобода»
- Форум жителей ЖК - «Никольский»
- Форум жителей ЖК - «Альбертвиль»
- Форум жителей ЖК - «На семи холмах»
- Форум жителей ЖК - «Горьковский квартал (Экоград-Обухово)»
- Форум жителей ЖК - «Западный бастион»
- Форум жителей ЖК - «Губернский»
- Форум жителей ЖК - «Новые клюшки»
- Форум жителей ЖК - « на ул. Краснознаменская»
- Форум жителей ЖК - «Фединская слобода»
- Форум жителей ЖК - «Супонево-4»
- Форум жителей ЖК - «Правда-4»
- Форум жителей ЖК - «Марушкино»
- Форум жителей ЖК - «Тургенева, 13»
- Форум жителей ЖК - «Вилль Хаус»
- Форум жителей ЖК - «Абрамцево»
- Форум жителей ЖК - «Новый квартал Бекасово»
- Форум жителей ЖК - «Ядреевский»
- Форум жителей ЖК - «Альянс»
- Форум жителей ЖК - «Аттика»
- Форум жителей ЖК - «Вознесенский»
- Форум жителей ЖК - «1 Мая»
- Форум жителей ЖК - «Центральный (Центр Ольгино)»
- Форум жителей ЖК - «Дом на Студенческом»
- Форум жителей ЖК - «Олимп 3»
- Форум жителей ЖК - «Новоспасский»
- Форум жителей ЖК - «Супонево Life»
- Форум жителей ЖК - «Омега 2»
- Форум жителей ЖК - «Европейский квартал (Озерный)»
- Форум жителей ЖК - «Новое Зимогорье»
- Форум жителей ЖК - «Федеративный»
- Форум жителей ЖК - «Дедовский»
- Форум жителей ЖК - «Басманный 5»
- Форум жителей ЖК - «Олесово»
- Форум жителей ЖК - «Новое Ялагино»
- Форум жителей ЖК - «Лунный»
- Форум жителей ЖК - «Тройка»
- Форум жителей ЖК - «Олимп 2»
- Форум жителей ЖК - «Старый город»
- Форум жителей ЖК - «Трио»
- Форум жителей ЖК - «Лама-Парк»
- Форум жителей ЖК - «Северный (Ивановские дворики)»
- Форум жителей ЖК - «Микрорайон 10»
- Форум жителей ЖК - « Экопарк Бисерово»
- Форум жителей ЖК - «Ялагинские аллеи»
- Форум жителей ЖК - «Дом на Почтовой»
- Форум жителей ЖК - «Тройка»
- Форум жителей ЖК - «Дмитрослав»
- Форум жителей ЖК - «Микрорайон 28»
- Форум жителей ЖК - « Берег Скалбы 2»
- Форум жителей ЖК - «Квартал 24»
- Форум жителей ЖК - «Десяточка-3»
- Форум жителей ЖК - «Комсомольская, 2»
- Форум жителей ЖК - «Изумрудный (Щитниково Б)»
- Форум жителей ЖК - «На Макаренко»
- Форум жителей ЖК - «Макеевский»
- Форум жителей ЖК - «Микрорайон 6А»
- Форум жителей ЖК - «Дом на улице Вокзальная»
- Форум жителей ЖК - «Школьный»
- Форум жителей ЖК - «Дом на Комсомольской улице»
- Форум жителей ЖК - «Два квартала»
- Форум жителей ЖК - «Микрорайон 5А»
- Форум жителей ЖК - «Уголек»
- Форум жителей ЖК - «Перхушково (Перхушково Лайф)»
- Форум жителей ЖК - «в Вербилках»
- Форум жителей ЖК - «На Макаренко»
- Форум жителей ЖК - «на ул. Льва Толстого»
- Форум жителей ЖК - «Королев»
- Форум жителей ЖК - «на ул. Кирова»
- Форум жителей ЖК - «Кв. 6, корпус 1»
- Форум жителей ЖК - «на ул. Лучистая»
- Форум жителей ЖК - «Созвездие Одинцово»
- Форум жителей ЖК - «Микрорайон 8»
- Форум жителей ЖК - «Флагман»
- Форум жителей ЖК - «на ул. Овражная»
- Форум жителей ЖК - «Юбилейный проспект, вл. 44А»
- Форум жителей ЖК - «Микрорайон 9А»
- Форум жителей ЖК - «Уютный»
- Форум жителей ЖК - «на ул. Давыдова»
- Форум жителей ЖК - «Феникс парк»
- Форум жителей ЖК - «на ул. Кирова»
- Форум жителей ЖК - «Новосельцево»
- Форум жителей ЖК - «Чулковское»
- Форум жителей ЖК - «Апельсин»
- Форум жителей ЖК - «Стахановский»
- Форум жителей ЖК - «Дом на Тихой»
- Форум жителей ЖК - «в пос. Электроизолятора»
- Форум жителей ЖК - «на ул. Кооперативная (Лесной)»
- Форум жителей ЖК - «Nuova Vita (на Ленинском проспекте)»
- Форум жителей ЖК - «пр-кт. Красной Армии, д. 251А»
- Форум жителей ЖК - «Браво (Тарасовский, Bravo)»
- Форум жителей ЖК - «на ул. Ленина»
- Форум жителей ЖК - «Огни Ногинска (Дом на Текстилях)»
- Форум жителей ЖК - «на ул. 1-й Урицкого»
- Форум жителей ЖК - «Зеленый Город»
- Форум жителей ЖК - «в микрорайоне Саввино»
- Форум жителей ЖК - «Ленинские горки»
- Форум жителей ЖК - «Твой адрес мечты»
- Форум жителей ЖК - «Оранжвуд (Orangewood)»
- Форум жителей ЖК - «Май»
- Форум жителей ЖК - «Воря»
- Форум жителей ЖК - «Сказка»
- Форум жителей ЖК - «на ул. Добролюбова»
- Форум жителей ЖК - «Звезда Томилино»
- Форум жителей ЖК - «Солнечный град»
- Форум жителей ЖК - «Архангельское»
- Форум жителей ЖК - «Мишино»
- Форум жителей ЖК - «на ул. Речная»
- Форум жителей ЖК - «Опалиха Village»
- Форум жителей ЖК - «на ул. Гагарина»
- Форум жителей ЖК - «Марусино»
- Форум жителей ЖК - «Томилино»
- Форум жителей ЖК - «на ул. Кирова»
- Форум жителей ЖК - «на ул. Чехова»
- Форум жителей ЖК - «Большой Железнодорожный проезд, корп. 8»
- Форум жителей ЖК - «Микрорайон 4А»
- Форум жителей ЖК - «на ул. Жарова»
- Форум жителей ЖК - «Новокосино-2»
- Форум жителей ЖК - «Колычево»
- Форум жителей ЖК - «Центр +»
- Форум жителей ЖК - «Янтарь»
- Форум жителей ЖК - «Зеленый городок»
- Форум жителей ЖК - «Морозовский квартал»
- Форум жителей ЖК - «Green City (Грин Сити)»
- Форум жителей ЖК - «на ул. Володарского»
- Форум жителей ЖК - «Солнечный»
- Форум жителей ЖК - «Ликино»
- Форум жителей ЖК - «Маяковский»
- Форум жителей ЖК - «31 квартал»
- Форум жителей ЖК - «на 3-ем Московском проезде»
- Форум жителей ЖК - «Новое Селятино - Комфорт»
- Форум жителей ЖК - «Дом на Валовой»
- Форум жителей ЖК - « ул. Серпуховская»
- Форум жителей ЖК - «Astrum Residence (Дом на набережной)»
- Форум жителей ЖК - «на ул. Тверская-Октябрьская»
- Форум жителей ЖК - «на улице Угрешская»
- Форум жителей ЖК - «Микрорайон 25»
- Форум жителей ЖК - «Red Loft (Ред Лофт)»
- Форум жителей ЖК - «в пос. Совхоза имени Ленина»
- Форум жителей ЖК - «ул. Микояна, 20а»
- Форум жителей ЖК - «Красково»
- Форум жителей ЖК - «Республика»
- Форум жителей ЖК - «Аккорд (Новые Жаворонки)»
- Форум жителей ЖК - «ул. Малая Комитетская»
- Форум жителей ЖК - «Красная горка, кв. 7-8»
- Форум жителей ЖК - «Дом на Парковой»
- Форум жителей ЖК - «Новое Сватково»
- Форум жителей ЖК - «Валь д`Эмероль»
- Форум жителей ЖК - «на ул. Первомайская»
- Форум жителей ЖК - «на ул. Дубки»
- Форум жителей ЖК - «на ул. 8 Марта»
- Форум жителей ЖК - «Дом на Большом Железнодорожном проезде»
- Форум жителей ЖК - «на ул. Фрунзе»
- Форум жителей ЖК - «на ул. 7-ой Гвардейской дивизии»
- Форум жителей ЖК - «в Папанинском переулке»
- Форум жителей ЖК - «на ул. Микояна»
- Форум жителей ЖК - «ул. Фрунзе, 30»
- Форум жителей ЖК - «Admiral Waterhouse (Адмирал Вотерхаус)»
- Форум жителей ЖК - «Махалина»
- Форум жителей ЖК - «на ул. Высоковольтная»
- Форум жителей ЖК - «ул. Советская»
- Форум жителей ЖК - «на ул. Пионерская»
- Форум жителей ЖК - «Новокосино»
- Форум жителей ЖК - «на Московской улице»
- Форум жителей ЖК - «Владимирский»
- Форум жителей ЖК - «Ивановские пруды»
- Форум жителей ЖК - «на ул. Лесная»
- Форум жителей ЖК - «на ул. Металлургов»
- Форум жителей ЖК - «Квартал на Садовой»
- Форум жителей ЖК - «на ул. Гагарина»
- Форум жителей ЖК - «River Park (Ривер Парк)»
- Форум жителей ЖК - «Огни Коломны»
- Форум жителей ЖК - «Парк Гармония»
- Форум жителей ЖК - «на ул. Декабристов»
- Форум жителей ЖК - «Высоково»
- Форум жителей ЖК - «Пегас»
- Форум жителей ЖК - «Маяковского»
- Форум жителей ЖК - «Молодая Купавна»
- Форум жителей ЖК - «Фряново парк»
- Форум жителей ЖК - «Вишневый»
- Форум жителей ЖК - «Центральная усадьба»
- Форум жителей ЖК - «в Лесном»
- Форум жителей ЖК - «Янтарный (Щитниково)»
- Форум жителей ЖК - «на ул. Ворошилова»
- Форум жителей ЖК - «на Каширском шоссе»
- Форум жителей ЖК - «Славянка-Сколково (Западные ворота столицы)»
- Форум жителей ЖК - «Киово (мкр. Восточный)»
- Форум жителей ЖК - «Мкр. 3, ул. Ленина»
- Форум жителей ЖК - « Путилковском шоссе»
- Форум жителей ЖК - «Банный»
- Форум жителей ЖК - «Пригород Лесное»
- Форум жителей ЖК - «ул. Советская, к. 40Б»
- Форум жителей ЖК - «на ул. Климова»
- Форум жителей ЖК - «в пос. Лесной»
- Форум жителей ЖК - «1-й Текстильный
- Форум жителей ЖК - «на ул. Шаталова»
- Форум жителей ЖК - «Дом в Ивантеевке (на ул. Дзержинского)»
- Форум жителей ЖК - «Басманный 5»
- Форум жителей МФК - «Фили Парк»
- Форум жителей ЖК - «Пироговская ривьера»
- ЖК "Эрмитаж"
- Форум жителей ЖК - «Бунинский»
- Форум жителей ЖК - «Ясный»
- Форум жителей ЖК - «Немчиновка»
Кто сейчас на конференции
Сейчас этот форум просматривают: нет зарегистрированных пользователей и 0 гостей